装修案例
装修攻略
装修问答
装修商品
装修服务商
73平现代两室装修效果图
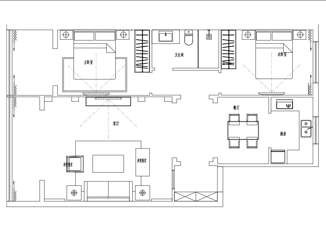
全屋户型图
室2厅整体全包家装
客厅装修效果图

客厅:客厅设计与元素简单温润,大地色系软装与地板映射着时间的沉淀,似将故事娓娓道来,不疾不徐、温文尔雅。

餐厅:在客厅与厨房的转角,简单的深色餐桌椅矗立在墙边,一字型吊灯驱走黑暗,低调、沉稳的空间得以展现。
卧室装修效果图

主卧:静谧、舒适的空间,最易使人放松休憩。柔和的暖光温暖的色调,营造出舒适宁静的氛围,让每个满脸倦容的归者,卸下疲惫,酣甜入梦!

次卧:量身定制的衣柜,易打理的烤漆面板、简洁的腰线设计,迎合简约设计的理念。
厨房装修效果图


卫生间:台下盆和收纳柜一体设计,将设计美学与实用艺术相结和,每一次洗漱都是一种享受。
编辑总结:以上就是关于现代两室装修效果图的话题介绍,了解更多装修知识、装修公司评价、装修案例请继续关注家友趣装修网!

