装修案例
装修攻略
装修问答
装修商品
装修服务商
飘窗上也能加柜子,127平灰调现代二居!

▲ 建筑面积127平,入户右侧一组竖柜满足收纳所需,餐厅吧台串连设计
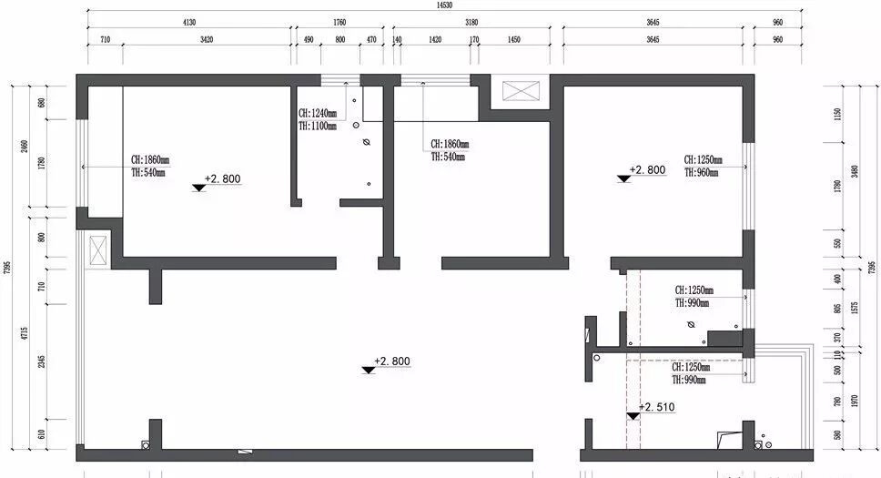
▲ 平面装修效果图
▲ 平面装修效果图
▲ 餐厅,黑白灰空间木色地板增加自然质感,高饱和装饰画提亮空间
▲ 餐厅望向客厅,开放式互通格局,更显空间开阔性,同时增加空间互动
▲ 客厅延续原木色地板,极简顶面无主灯设计,黑色线性装饰勾勒方正空间
▲ 整个空间为现代风格,主基调为灰色,简洁中有着变化
▲ 局部色彩软装配饰点缀,以此来增加整体配色的层次感
▲ 采用纯色墙面,石质地台设计,落地装饰画与侧边展示柜作修饰
▲ 两组竖柜兼具收纳与展示机能
▲ 厨房整体延续灰色基调,搭配黑色橱柜,简洁大方易打理
▲ 客卫,灰色六边砖加黑色美缝做背景,木色台盆柜和镜柜,简洁实用
▲ 衣帽间,灰色柜体搭配长条线性拉手,中间嵌一列层板竖柜,玻璃柜门与隐形光源,时尚又有层次感
▲ 主卧,延续浅灰色基调搭配木色地板,利用飘窗加做储物柜体
▲ 现代风家具搭配对称悬挂吊灯,大幅白桦林装饰画做背景
▲ 主卧与主卫之间采用大面积玻璃取代实墙,拉伸空间视觉,让光线相互通透
▲ 主卫整体通铺灰色石纹哑光砖,木纹台盆柜的台面延伸至马桶后方,方便置物,浴缸淋浴相结合设计

